MAP
Photos
Map
Schools

Ashburton 4 Vercoe Street, Ashburton

4 Bedrooms2 Bathrooms2 GaragesID AU216004
$759,000

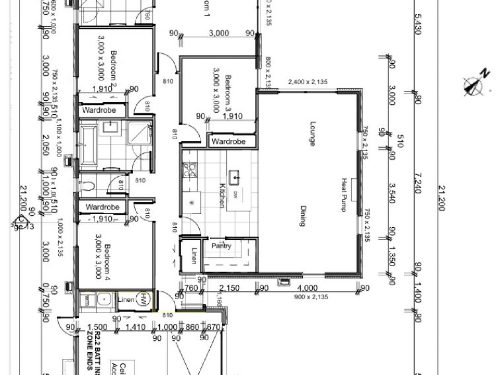
Brand new - four bedrooms

Be part of the excitement in Strowan Fields, where growth and modern living go hand in hand. This brand-new home, currently under construction, offers the perfect opportunity to secure a stylish, low-maintenance lifestyle in a thriving community.

Step inside and discover a spacious open plan kitchen, dining and living area, designed for easy everyday living and effortless entertaining. The modern kitchen sits proudly at the heart of the home, featuring a generous walk-in pantry and seamless flow through to the living area, complete with a heat pump for year-round comfort. Ranch sliders open out to a sunny patio and expansive backyard, ideal for BBQs, playtime, or simply relaxing outdoors.

There's room for everyone with three double bedrooms, each with built-in wardrobes, plus a deluxe master suite that feels like a private retreat - complete with tiled ensuite, walk-in robe, and ranch slider access to the patio. The family bathroom offers both a shower and bath, complemented by the convenience of a separate toilet.

Practicality is well covered with a double internal access garage that includes the laundry and extra storage.

Located in one of the region's most sought-after new subdivisions, this home combines comfort, convenience, and quality. Secure it today and soon you'll be calling it home.
CHATTELS  Fixed floor coverings   |   Light fittings   |   Stove   |   Rangehood   |   Dishwasher   |   Kitchen waste disposal   |   Smoke detector(s)   |   Heated towel rail(s)   |   Heat pump(s)   |   Garage door remote control(s) x 2   |   Bathroom Extractor Fan   |   Bath   |   Induction Hob   |   Letterbox   |   Mirrors x3   |   EV prewire in garage
Open Home
Sat 13 December 2025
10:30am - 11:00am
Features
Area | 175.00m2Land | 550 m2RV | $190,000
PRINT ENQUIRE NOW REQUEST INFORMATION FILES

Mel Perriton

M  022 175 0780  P  

Enquire Now










ASAP  0-2 months  3-6 months 
Yes  No 













Privacy Statement




Property Brokers Ltd MREINZ acknowledges and complies with the provisions of the Privacy Act 1993 and its amendments. In particular Property Brokers policy covers the following specific points relevant to this topic and this website:


Any client information you provide to Property Brokers will be used only for the purpose for which it is given and will not be passed on to any third party except in accordance with the law, or with specific consent.


In the main, this will be to facilitate company communication with you in order to better meet your real estate objectives and expectations.


Information provided by you will remain confidential to Property Brokers Real Estate Ltd MREINZ. This particularly applies to your reasons for selling which we regard and treat as a personal and private matter.


Any information divulged by you to any other website linked to the Property Brokers website is given at your discretion alone, and Property Brokers takes no responsibility for any disclosures that might result.


Information provided on this website is copyrighted to Property Brokers and may be accessed, downloaded and used for personal use only. The material must not be modified, copied or reproduced for gain or commercial use without the consent in writing of Property Brokers Real Estate Ltd MREINZ.


 




Google disclaimer


This website uses Google Analytics to help analyse how users use the site.


The tool uses "cookies," which are text files placed on your computer, to collect standard Internet log information and visitor behaviour information in an anonymous form.


The information generated by the cookie about your use of the website (including your IP address) is transmitted to Google. This information is then used to evaluate visitors use of this website and to compile statistical reports on website activity.


We will never (and will not allow any third party to) use the statistical analytics tool to track or to collect any Personally Identifiable Information of visitors to our site. Google will not associate your IP address with any other data held by Google. Neither we nor Google will link, or seek to link, an IP address with the identity of a computer user.


You may refuse the use of cookies by selecting the appropriate settings on your browser, however please note that if you do this you may not be able to use the full functionality of this website.


By using this website, you consent to the processing of data about you by Google in the manner and for the purposes set out above.


This website uses Google AdWords


This website uses the Google AdWords remarketing service to advertise on third party websites (including Google) to previous visitors to our site. It could mean that we advertise to previous visitors who havent completed a task on our site, for example using the contact form to make an enquiry. This could be in the form of an advertisement on the Google search results page, or a site in the Google Display Network. Third-party vendors, including Google, use cookies to serve ads based on someones past visits to the [CLIENT NAME] website. Of course, any data collected will be used in accordance with our own privacy policy and Googles privacy policy.


You can set preferences for how Google advertises to you using the Google Ad Preferences page, and if you want to you can
opt out of interest-based advertising entirely by cookie settings or
permanently using a browser plugin.


Mel Perriton
Rapid SSL Site Seal
Similar Listings
58 Wills Street
Ashburton
OPEN HOME:  Sat 13th Dec 2025 1.00pm - 1.30pm

Comfortable, low-maintenance living awaits in this well-presented 1990's rear townhouse, positioned on a shared driveway in a superb and convenient location just ...

3 Bedrooms1 Bathroom2 Garages
Buyers $630,000+
19 Orwell Way
Ashburton

Located in the sought-after Strowan Fields subdivision, this quality new build is currently under construction and is the perfect blend of comfort, style ...

3 Bedrooms2 Bathrooms2 Garages
Buyers $720,000+
29 Miller Avenue
Allenton
OPEN HOME:  Sat 13th Dec 2025 10.45am - 11.15am

Set on a generous and private section in one of Allenton's sought-after streets, this superb family home offers space, comfort and convenience for the whole family ...

4 Bedrooms2 Bathrooms3 Garages
Buyers $745,000+
17 Vercoe Street
Ashburton
OPEN HOME:  Sat 13th Dec 2025 10.30am - 11.00am

Step into this brand new three bedroom home, thoughtfully designed for modern family living. The spacious open plan kitchen, dining, and living area creates the ...

3 Bedrooms2 Bathrooms2 Garages
$699,000